I&I Setia Alam Industrial Park

TypeDouble Storey Semi Detached
SizeLand Area: 11,022 sqft – 16,329 sqft
Build up: 9,595 sqft
TenureFreehold
Target Completion2027 Q1
Product Spec1 ton Service Lift, 250 Amp Power Supply, Stainless Steel Gutter, Concrete Driveway, Ground Floor Loading : 2ton/m², Second Floor Loading: 1ton/m²

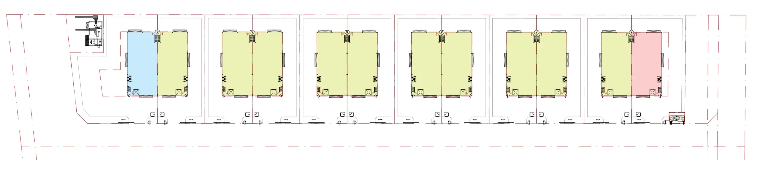
Site Plan Type A, B & C

Type A

  • Land Area – 16,329 ft²
  • Total Built Up Area – 9,595 ft²

Type B

  • Land Area – 11,022 ft²
  • Total Built Up Area – 9,595 ft²

Type C

  • Land Area – 12,109 ft²
  • Total Built Up Area – 9,595 ft²

Semi-Detached Freehold

Type A, B & C

  • Wide frontage main road 20.2m² / 66 ft
  • 250 Amp power supply
  • Clip lock roofing system
  • Roof design for future solar support
  • Ground floor loading : 2 ton/m², Second floor loading : 1 ton/m²
  • Concrete driveway

Semi-Detached Type A, B & C

Front / Rear & Side View

Semi-Detached Type A, B & C

Floor Plan - Ground / 1st / 2nd

Type A

  • Land Area – 16,329 ft²
  • Ground Floor – 4,112 ft²
  • 1st Floor – 1,370 ft²
  • 2nd Floor – 4,112 ft²
  • Total Build up Area – 9,595 ft²

Type B

  • Land Area – 11,022 ft²
  • Ground Floor – 4,112 ft²
  • 1st Floor – 1,370 ft²
  • 2nd Floor – 4,112 ft²
  • Total Build up Area – 9,595 ft²

Type C

  • Land Area – 12,109 ft²
  • Ground Floor – 4,112 ft²
  • 1st Floor – 1,370 ft²
  • 2nd Floor – 4,112 ft²
  • Total Build up Area – 9,595 ft²

Registrations

Register for your interest now to receive the latest information & updates!

Scroll to Top